
Aarana Residencies Living
Introducing Aarana, our signature brand in luxury living. Aarana embodies refined elegance and architectural distinction, setting a new benchmark in Sri Lanka’s high-end residential landscape. Each exclusive villa and apartment blends contemporary design with smart-living technologies and serene surroundings—crafted for discerning individuals who value sophistication, privacy, and modern comfort. With Aarana, we’re not merely elevating the standards of luxury real estate—we’re redefining what it means to live well.
Aarana Boutique Residencies Living
Where luxury meets lifestyle – modern homes designed with serenity and smart technology.

Living area

Garden Area

Jogging Path

Balcony

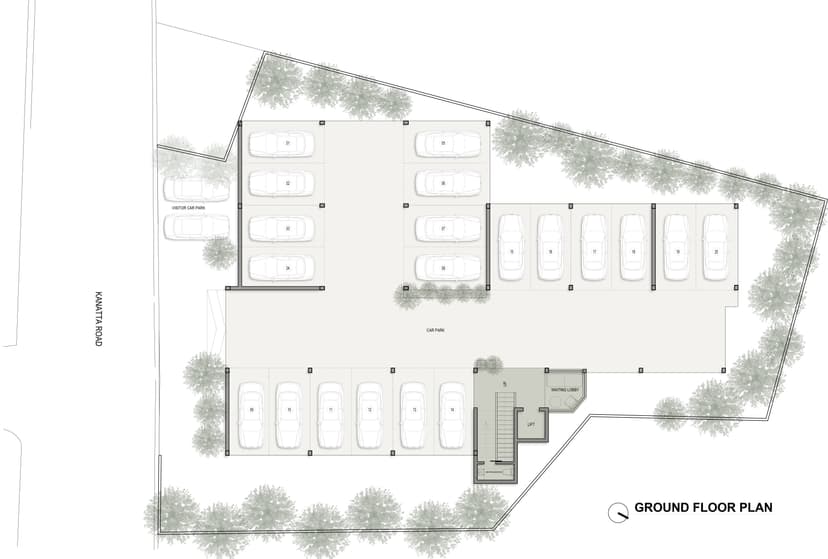
Parking

Living area

Garden Area

Jogging Path

Balcony

Parking
Plan of Apartment

Click to enlarge
Apartment Details
20 Boutique Apartments
20 Car Parking
5 Floors
Each Floor 4 Apartments
3 Bed Room 10 Units Two Types
2 Bed Room 10 Units Two Types
Facilities
24 Hours security
Parking
Centralized Gas, Water, Electricity
Backup Generator
Sewerage Treatment
Garbage Disposal
Lift Service
Electric Charging Points for vehicles
Visitors Parking
Disable Car Park
Meeting Room
Electric Gate
Floor Plans & Unit Layouts

Click to enlarge

Click to enlarge

Click to enlarge

Click to enlarge

Click to enlarge
Project Information
Developer
Oracle International (Pvt) Ltd.
Architect
Vinod Jayasinghe Associates (Pvt) Ltd.
Structural Engineer
URO Structural Consultants (Pvt) Ltd.
Mr. A.P Vandebona
MEP Works
RIGO Engineering Consultants (Pvt) Ltd.
Mr. Koojana Weerasinghe
Quantity Surveyor
VFORM Consultants (Pvt) Ltd.
Mr. Lalith Rathnayake
Contractor & Structure
Contractor: C1/C2 CIDA rated
Sub structure: RCC piling
Super Structure: RCC Frame | Block & Brick walls

